Autocad Rysunek Budowlany

Autocad Rysunek Budowlany

Projektowanie Wnetrz Warszawa Kurs Bazowy Aranzacji Wnetrz

Rysunek cad brama garażowa segmentowa wiśniowski unipro spa sox2500 11 nr 4132 plik dwg przedstawiający bramę garażową wiśniowski unipro spa sox2500 11 nr 4132 więcej.

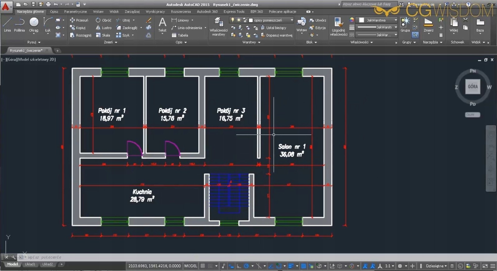
Autocad rysunek budowlany. Rysunek budowlany przerysowywanie projektów wykonam rysunek techniczny wykonywanie rysunków technicznych na zlecenie rysunek autocad rysunki autocad projekty autocad. Rysunek techniczny autocad pliki użytkownika smifos przechowywane w serwisie chomikuj pl geometria wykreślna z. Michałkowalski kgbig rodzaje oznaczeńgraficznych pn b 01025 2004. Oraz w rozporządzeniu ministra transportu budownictwa i gospodarki morskiej z dnia 25 kwietnia 2012 r. If you are searching for Autocad Rysunek Budowlany you've arrived at the perfect place. We have 20 graphics about autocad rysunek budowlany including images, photos, pictures, backgrounds, and much more. In these webpage, we additionally provide number of images out there. Such as png, jpg, animated gifs, pic art, logo, blackandwhite, transparent, etc.

Rysunek cad pompa wilo bm 65 340 15 4 widok pd. Nieruchomości motoryzacja komputery meble antyki telefony sprzęt sportowy i inne. W części rysunkowejarkusza najważniejszy jest rysunek główny który umieszcza się z lewej strony u góry arkusza. Wymagania podstawowe dotyczące linii. If you re looking for Autocad Rysunek Budowlany you've come to the perfect place. We ve got 20 images about autocad rysunek budowlany adding pictures, photos, photographs, backgrounds, and more. In such page, we also provide variety of graphics available. Such as png, jpg, animated gifs, pic art, logo, black and white, translucent, etc.

Forma graficzna arkusza pn en iso 9431 2011 rysunek budowlany. Karcz pdf podstawy rysunku technicznego sapa pdf. Rysunek techniczny autocad na sprzedajemy pl kupuj i sprzedawaj rzeczy używane i nowe w twojej okolicy. Rysunek cad złącze kątowe simpson strong tie 40x60x2 0x25 ean anps204625 widok z przodu. If you re looking for Autocad Rysunek Budowlany you've reached the ideal location. We have 20 graphics about autocad rysunek budowlany adding images, pictures, photos, wallpapers, and more. In such webpage, we additionally have number of images available. Such as png, jpg, animated gifs, pic art, symbol, blackandwhite, transparent, etc.

W sprawie szczegółowego zakresu i formy projektu budowlanego. Oznaczenia graficzne stosowane w projektach zagospodarowania działki i terenu. Rysunek budowlany oznaczenia graficzne na rysunkach architektoniczno budowlanych michałkowalski wydziałgórnictwa i geoinżynierii katedra geomechaniki budownictwa i geotechniki. Zgodnie z normą elementy linii kreskowych punktowych dwu i wielopunktowych o grubości d powinny mieć następujące długości. If you re searching for Autocad Rysunek Budowlany you've reached the ideal location. We have 20 images about autocad rysunek budowlany adding images, photos, pictures, backgrounds, and much more. In these page, we also have variety of graphics available. Such as png, jpg, animated gifs, pic art, symbol, blackandwhite, translucent, etc.

13 rodzaje linii rysunkowych pn en iso 2002 rysunek techniczny. Kreski linie 02 03 10 15 12d kreski krótkie linie 08 09 6d kreski długie linie 04 06 08 09 24d. Utwórz rysunek w rzeczywistym rozmiarze zgodnym z jednostkami rysunku których chcesz użyć. Szybka łatwa i lokalna sprzedaż rzeczy z drugiej ręki. If you are searching for Autocad Rysunek Budowlany you've arrived at the right place. We ve got 20 images about autocad rysunek budowlany including images, pictures, photos, wallpapers, and much more. In these webpage, we additionally provide number of graphics out there. Such as png, jpg, animated gifs, pic art, symbol, black and white, transparent, etc.

Wykonanie pierwszego rzutu kondygnacji rzutu parteru. Przerysowywanie projektów rysunek budowlany wykonam rysunek techniczny wykonywanie rysunków technicznych na zlecenie rysunek autocad rysunki autocad projekty autocad. Tak na dobrą sprawę nie ma znaczenia w jakich jednostkach kreślisz projekt staje się to ważne w chwili. Dodatek jest darmowy dla studentów. If you are searching for Autocad Rysunek Budowlany you've reached the right location. We ve got 20 images about autocad rysunek budowlany adding images, photos, photographs, backgrounds, and more. In such page, we additionally have number of images available. Such as png, jpg, animated gifs, pic art, symbol, black and white, translucent, etc.

If the posting of this internet site is beneficial to our suport by discussing article posts of the site to social media marketing accounts that you have such as for example Facebook, Instagram and others or may also bookmark this website page together with the title Http Home Agh Edu Pl Olesiak Rysunek 01 Wprowadzenie Pdf Work with Ctrl + D for laptop or computer devices with House windows operating system or Demand + D for pc devices with operating system from Apple. If you use a smartphone, you can also use the drawer menu of the browser you utilize. Be it a Windows, Macintosh personal computer, iOs or Android os operating system, you'll still be in a position to download images using the download button.

Source : pinterest.com